深圳龙岗分公司
电 话:0755-85207266
传 真:0755-85207166
24小时服务热线:18098916716
联系人:郭生
地 址:深圳市龙岗区新生路91号龙鸿源五金市场G106号
邮 箱:xhygtc@163.com
东莞万江分公司
24小时服务热线:13510769830
联系人:郭生
地 址:东莞市万江区简沙洲展鸿科技园办公楼三楼302
杭州萧山分公司
24小时服务热线:15071002956
联系人:胡生
邮 箱:1652091360@qq.com
地 址:杭州市萧山站前商贸广场4栋4号
重庆渝北分公司
24小时服务热线:15213095228
联系人:霍生
电 话:023-88793284
地 址:重庆市渝北区回兴街道翠屏三巷2号

这个市政路灯项目一共分为几个版块,分别为:
1、厂区强电管网
2、辅助车间照明防雷
3、立体仓库&平仓照明防雷
4、污水处理照明防雷
5、辅助车间照明防雷
6、立体仓库&平仓照明防雷
7、立体仓库&平仓照明防雷
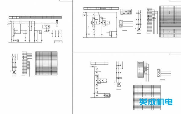
下面是部分设计图纸:
1、厂区强电管网
2、辅助车间照明防雷
3、辅助车间照明防雷
4、立体仓库&平仓照明防雷
5、污水处理照明防雷